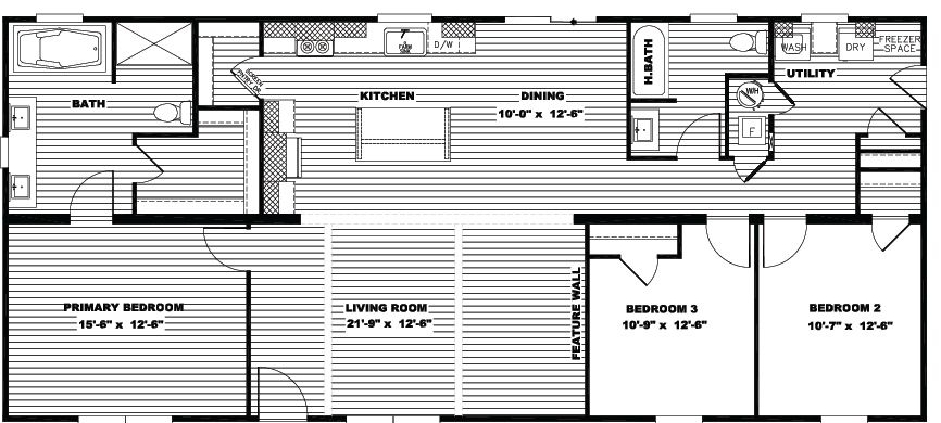
Discover the perfect home for your modern lifestyle with the Farm 3 Flex. This adaptable 3-bedroom, 2-bathroom home features a flexible space that can be transformed into a home office, playroom, or extra bedroom to suit your family’s needs.
Our popular split floor plan offers privacy and functionality, while the eye-catching curb appeal makes a lasting impression. Inside, enjoy the comfort and style of tape and textured walls, creating a finished look.
Built with Clayton’s eco-friendly eBuilt system, the Farm 3 Flex incorporates over 25 sustainable features without compromising on quality or comfort.









